Barrierefreiheit Kontakt

Fertighaus WEISS GmbH

Informationen zum Objekt Fertighaus WEISS GmbH

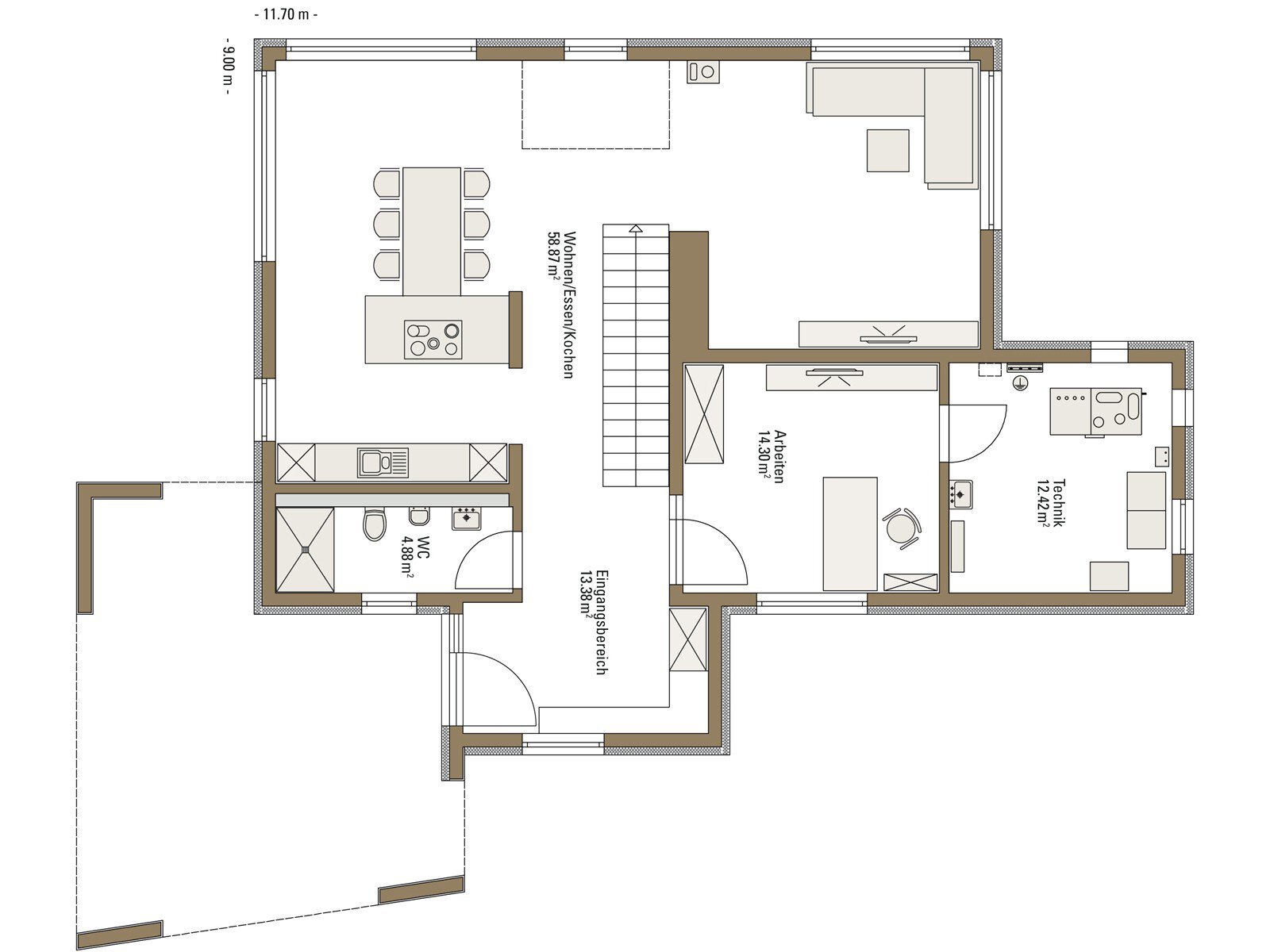
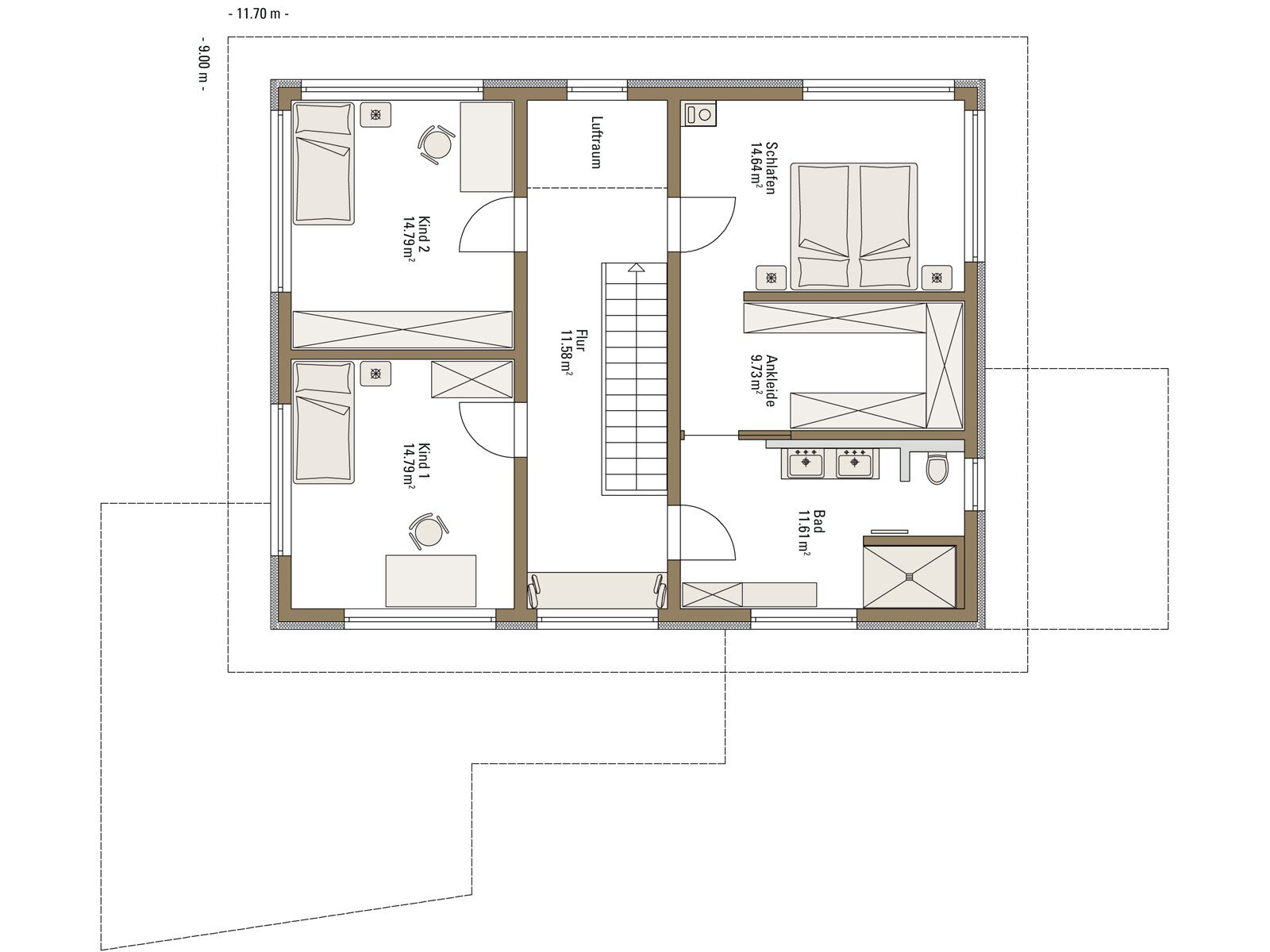
Gesamtwohnfläche

181.00 m²

Wohnfläche Erdgeschoss

103.85 m²

Wohnfläche Obergeschoss

77.14 m²

Smart geplantes Zuhause mit Weitblick

Das neue Musterhaus Poing von Fertighaus WEISS präsentiert einen modernen und flexiblen Grundriss, der Bauherren bis in das hohe Alter begleitet: Familien mit Kindern verfügen mit rund 180 Quadratmetern nutzbarer Bodenfläche über ausreichend Platz und eine gelungene Balance von Gemeinschaft und Individualität. Für das spätere Wohnen auf einer Ebene können ein Duschbad und ein zusätzliches Zimmer im Erdgeschoss genutzt werden. Der Essplatz steht im Zentrum des Hauses und ist in zahlreiche Sichtachsen eingebunden. Dagegen wurde der separierte Wohnbereich als Rückzugsort mit hohem Wohlfühlfaktor gestaltet. Highlights der Innenraumgestaltung des Musterhauses sind die als Möbelstück gestaltete Treppe aus der WEISS-Manufaktur, die an den Außenseiten als Regalfläche genutzt werden kann, sowie der Flur im Dachgeschoss, der dank Galerie und Sitzfenster eine besondere Wohnqualität erhält. Die nachhaltige Holztafelkonstruktion des Hauses wird ergänzt durch eine Photovoltaikanlage mit Batteriespeicher und eine E-Tankstelle. Überdies bietet das Musterhaus Poing den von Fertighaus WEISS gewohnten Komfort und hohe Effizienz bei der Haustechnik: Eingesetzt wurden eine Luft-Wasser-Wärmepumpe, kontrollierte Wohnraumlüftung und Fußbodenheizung sowie ein funkbasiertes, erweiterbares Smart-Home-System. Natürliche und warme Farben bilden beim neuen Musterhaus Poing einen gelungenen Kontrast zum modernen Grau des flachen Satteldaches.

Ansprechpartner zum Objekt

+49 89 95993-490
+49 89 95993-490
Standort
Standort
Eva Liptay-Kohl
+49 163 4779147
+49 163 4779147
E-Mail schreiben
E-Mail schreiben
Standort
Standort
Laurin Nix
+49 163 6317525
+49 163 6317525
E-Mail schreiben
E-Mail schreiben
Standort
Standort
Marco Karnstedt
+49 176 63834306
+49 176 63834306
E-Mail schreiben
E-Mail schreiben
Standort
Standort
Fertighaus WEISS GmbH
+49 7977 9777-0
+49 7977 9777-0
+49 7977 9777-25
+49 7977 9777-25
E-Mail schreiben
E-Mail schreiben
www.fertighaus-weiss.de
www.fertighaus-weiss.de
Standort
Standort
Zum Seitenanfang