Barrierefreiheit Kontakt

SchwörerHaus KG

Informationen zum Objekt SchwörerHaus KG

Konstruktionsart

Holzständerbauweise

Drei Wohnkonzepte vereint in einem Multifunktionshaus

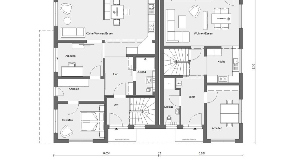
Das dreigeschossige, moderne und familienfreundliche Doppelhaus mit Keller bietet viel Raum auf wenig Baugrund. Im Landhausstil gebaut, fügt sich der traditionelle Baustil optimal in die Umgebung ein. Das Multifunktionshaus, welches drei unterschiedliche Wohnkonzepte vereint, kann hervorragend als Mehrgenerationenhaus oder/und Kapitalanlage genutzt werden.

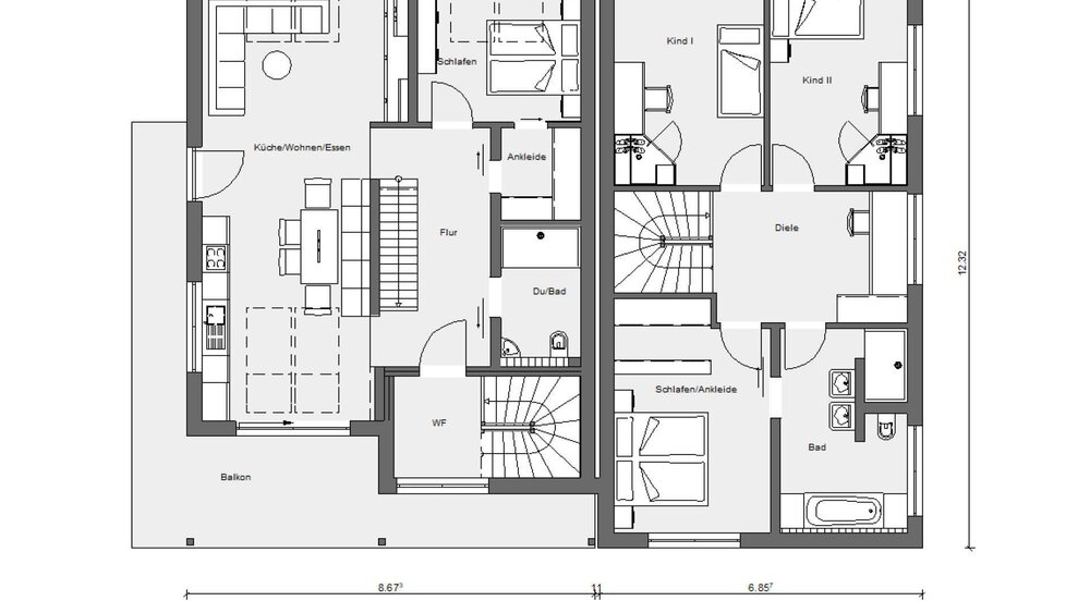
Die zweigeschossige Haushälfte, das Family-Haus, mit insgesamt 125 m² Wohnfläche bietet genügend Platz für eine Familie mit Kindern.

Im benachbarten Zweifamilienhaus sind die beiden Wohneinheiten durch ein geschlossenes Treppenhaus separat erreichbar. Optimal nutzbar für einen 2-Personen-Haushalt mit viel Raumerlebnis, ist die Comfort-Wohnung mit 74 m² im Erdgeschoss. Die maßgeschneiderte Einrichtung aus der Schwörer Design-Schreinerei sorgt für einen andauernden Blickfang.

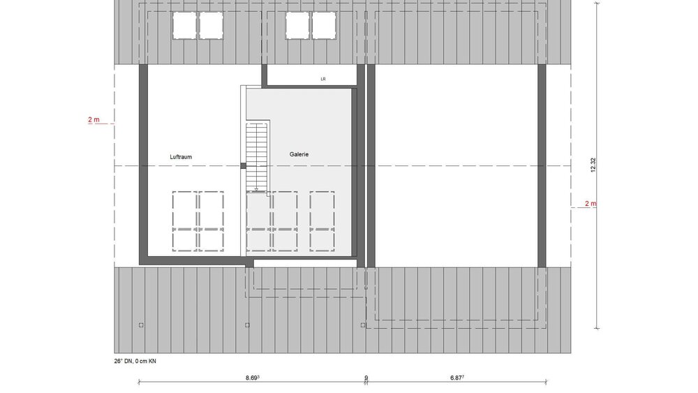
Ein 81 m² großes lichtdurchflutetes Loft-Apartment mit einer großzügigen Galerie ziert das Obergeschoss. Das Aushängeschild sind hier die neun großen Dachflächenfenster, welche das Wohnen unter dem Dach durch viel Tageslicht sehr attraktiv machen.


Gesamtwohnfläche: 154,78 m² / 124,78 m²
Wohnfläche Erdgeschoss: 74,13 m² / 60,14 m²
Wohnfläche Obergeschoss: 66,32 m² / 64,64 m²

Ansprechpartner zum Objekt

+49 89 504069
+49 89 504069
+49 89 5022572
+49 89 5022572
Standort
Standort
SchwörerHaus KG
+49 7387 16-111
+49 7387 16-111
+49 7387 16500-100
+49 7387 16500-100
E-Mail schreiben
E-Mail schreiben
www.schwoererhaus.de
www.schwoererhaus.de
Standort
Standort
Zum Seitenanfang