Barrierefreiheit Kontakt

Rubner Haus

Die Außenansicht eines kleinen grauen eckigen Bungalows aus Beton und Stahl mit großen Fensterflächen und einer weitläufigen Terrasse.

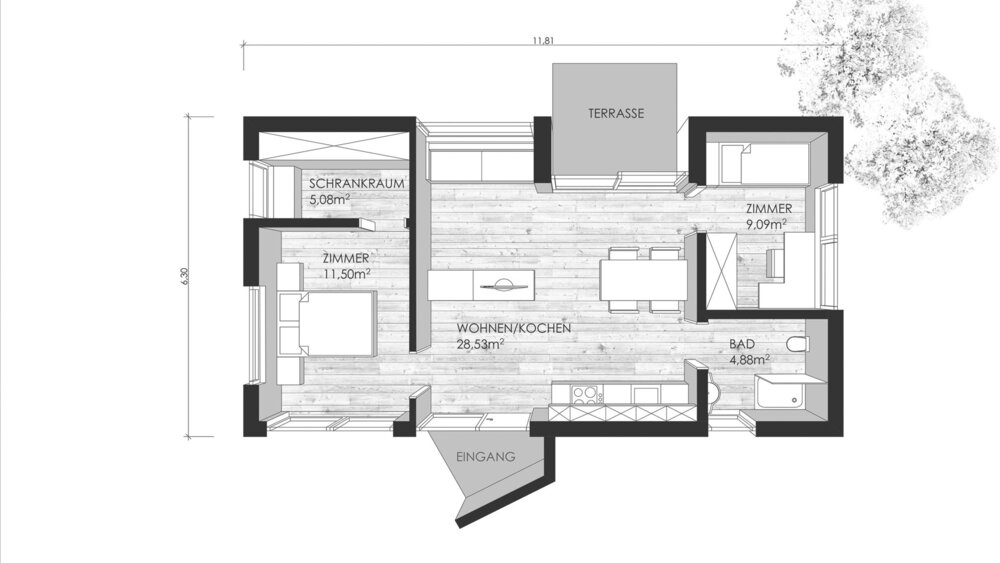
Informationen zum Objekt Rubner Haus

Gesamtwohnfläche

60.44 m²

Wohnfläche Erdgeschoss

60.44 m²

Konstruktionsart

Holzständerbauweise

ALMA Modernes Wohnen

Weg vom traditionellen Bungalow-Bau, hin zum modernen Loft-Charakter – ALMA ermöglicht durch die spezielle Bauweise barrierefreies Wohnen auf einer Ebene. Die Architektur ist geprägt von einer klaren, an den Bauhausstil angelehnten Formensprache. ALMA zeichnet sich dabei insbesondere durch Vielseitigkeit aus. Der Grundriss lässt sich individuell an die Bedürfnisse der Bauherren anpassen. Konstruktiv überzeugt ALMA durch das für Rubner charakteristische Holzriegelwandsystem aus biologischen Bau- und Dämmstoffen (Kork, Holzweichfaser).

Ansprechpartner zum Objekt

Brigitte Bertsch
+49 89 94384250
+49 89 94384250
+49 89 94384252
+49 89 94384252
E-Mail schreiben
E-Mail schreiben
Standort
Standort
Rubner Haus GmbH
+39 0474 5633-33
+39 0474 5633-33
+39 0474 5633-00
+39 0474 5633-00
E-Mail schreiben
E-Mail schreiben
www.haus.rubner.com
www.haus.rubner.com
Standort
Standort
Zum Seitenanfang