Barrierefreiheit Kontakt

RENSCH-HAUS GMBH

Modernes zweistöckiges weißes Haus mit großen Fenstern und Balkonen, umgeben von Grün unter einem klaren blauen Himmel.

Informationen zum Objekt RENSCH-HAUS GMBH

Gesamtwohnfläche

182.61 m²

Wohnfläche Erdgeschoss

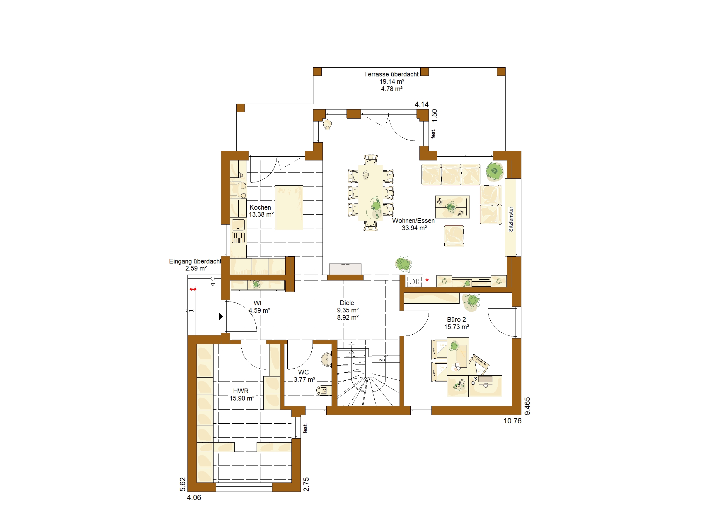
97.19 m²

Wohnfläche Obergeschoss

85.41 m²

Konstruktionsart

Holztafelbauweise

Eine Stadtvilla mit Klasse

Klare Formen und kubische Elemente unterstreichen den markanten Charakter der Stadtvilla Montana.An der strahlend weißen Fassade setzen dunkle Applikationen wirkungsvolle Akzente und betonen die großzügigen Verglasungen, die dem Innenleben des Hauses eine moderne, helle und freundliche Atmosphäre verleihen.

Der große Wohn-Essbereich und die nahtlos angrenzende Küche bieten Zugänge zur Terrasse. Der separate, eingeschossige Anbau ermöglicht ungestörte Büroarbeit. Ein zusätzliches Büro im Erdgeschoss kann auch anderweitig, zum Beispiel als Gästezimmer, genutzt werden.

Im Obergeschoss befinden sich zwei Kinderzimmer, das Elternschlafzimmer mit Ankleidebereich und das Familienbad.

Das Wohnerlebnis dieser prächtigen Stadtvilla wird vom teilweise überdachten, terrassengroßen Balkon gekrönt, der über drei Zugänge erreichbar ist.

Ansprechpartner zum Objekt

Robert Gratz
+49 171 9534316
+49 171 9534316
E-Mail schreiben
E-Mail schreiben
Standort
Standort
Walter Keferloher
+49 8133 996109
+49 8133 996109
+49 151 11955509
+49 151 11955509
E-Mail schreiben
E-Mail schreiben
Standort
Standort
Volker Kühnl
+49 174 8866244
+49 174 8866244
E-Mail schreiben
E-Mail schreiben
Standort
Standort
Kerstin Bode
+49 89 21553715
+49 89 21553715
E-Mail schreiben
E-Mail schreiben
Standort
Standort
Hubert Bruckbauer
+49 1575 6355469
+49 1575 6355469
E-Mail schreiben
E-Mail schreiben
Standort
Standort
RENSCH-HAUS GMBH
+49 9742 91-0
+49 9742 91-0
+49 9742 91-174
+49 9742 91-174
E-Mail schreiben
E-Mail schreiben
www.rensch-haus.com
www.rensch-haus.com
Standort
Standort
Zum Seitenanfang