Barrierefreiheit Kontakt

Regnauer Hausbau GmbH & Co. KG

Informationen zum Objekt Regnauer Hausbau GmbH & Co. KG

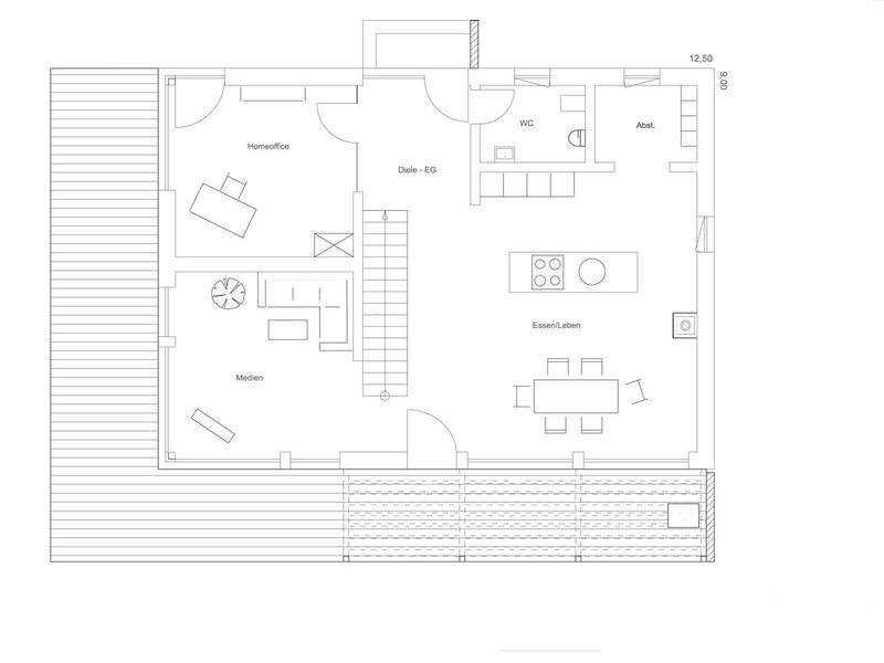
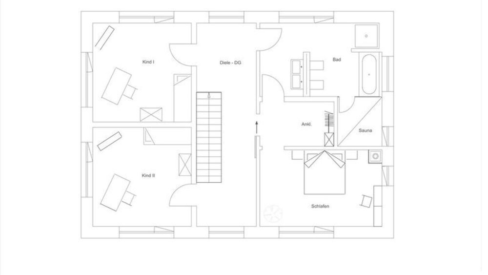
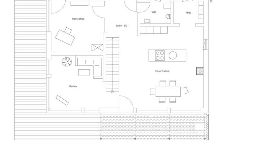
Gesamtwohnfläche

177.00 m²

Wohnfläche Erdgeschoss

92.00 m²

Wohnfläche Obergeschoss

85.00 m²

Konstruktionsart

Vitalhaus

Zuhause im eigenen Chalet

Schlicht, elegant und gleichzeitig hochmodern: Das neue Regnauer Musterhaus Heidi verbindet die Gemütlichkeit und Ruhe eines Holzhauses mit der zukunftsweisenden Ausstattung und Technik wegweisender Architektur.

Urlaubsfeeling zuhause, relaxen im eigenen Chalet, nachhaltige Zukunft erleben im privaten Heim, wer will das nicht? Heidi – so heißt das Regnauer Vitalhaus im Bauzentrum Poing – stellt den wohl charmantesten Königsweg zwischen schlichter Gemütlichkeit und hochmoderner Technik dar.

Die energetisch optimierte Gebäudehülle mit dem nachhaltig gedämmten Thermo-Vitaldach und den hochwertigen Holz-/Alufenstern bedeuten eine sehr gute Energieeffizienz für das Vitalhaus „Heidi“. Mit der darin eingesetzten Haustechnik im Sinne des Regnauer Plus-Energie-Haus ist er zudem förderfähig entsprechend KfW 40plus.

Für energetischen und persönlichen Komfort sorgen unter anderem die Proxon Frischluftwärmetechnik mit der Luft-/Luft-Wärmepumpe mit integrierter Trinkwasserwärmepumpe, das Photovoltaik-Solarsystem und der moderne Plewa Kaminofen sowie die Hausautomation, mit der die Heizung ebenso reguliert werden kann wie die Beleuchtung und auf Wunsch eine Alarmanlage.

Die Architektur des Gebäudekörpers erinnert an die luxuriöse Großartigkeit eines ebenso schlichten wie mondänen Chalets. Die filigrane Untersicht des sich außerhalb des Gebäudes verjüngenden Vitaldachs harmoniert bestens mit der eleganten Lärchenholzschalung im Obergeschoss der ansonsten anthrazitfarbenen Fassade. Asymmetrisch verteilte Fenster und Tecturaplatten zwischen den Fenstern setzen gezielte Akzente. Indirekte LED-Beleuchtung setzen das Erdgeschoss der Eingangsfront und die Eingangstür nachts in Szene und erhöhen das Sicherheitsgefühl.

Auch drinnen kombiniert Heidi zukunftsweisende Technik mit uriger Gemütlichkeit. Smart-Home-Steuerung, Wellness-Bad mit Privatsauna und ein moderner Kaminofen sorgen für Komfort. Innenarchitektonische Details wie falzlose Holztüren mit Magnetschnappern, die dunkle Lackspanndecke in der Diele, die vom Schreiner handgefertigte Holzküche mit Eiche-Vollholz-Schubladen und der rustikalen Holzlege davor oder die Terrasse mit dem Pizzaofen und der aus Baumstämmen gezimmerten Pergola verleihen das Gefühl, zuhause – im ganz privaten Urlaubsdomizil – angekommen zu sein.

Ansprechpartner zum Objekt

+49 89 94469303
+49 89 94469303
Standort
Standort
Regnauer Hausbau GmbH & Co. KG
+49 8667 722-22
+49 8667 722-22
+49 8667 722-90
+49 8667 722-90
E-Mail schreiben
E-Mail schreiben
www.regnauer.de
www.regnauer.de
Standort
Standort
Zum Seitenanfang